Makléř: Mgr. Nela Hrnčířová
Telefon: 728 118 ...
E-mail: nela.hr ...
Zobrazit celý kontaktTelefon: 728 118 662
E-mail: nela.hrncirova@globalreality.cz
Nemovitost nabízí
Global Reality HK s.r.o.
Havlíčkova 401, 500 02 Hradec Králové
Zobrazit kontakt na RK495 518 830
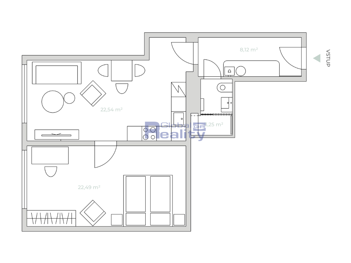
4712 - Pronájem velmi pěkně zrekonstruovaného bytu 2+kk, o výměře 58,6 m2, který je umístěn ve druhém patře zděného bytového domu. Po kompletní rekonstrukci i celý bytový dům. Dispozice bytu: vstupní chodba, prostorný obývací pokoj s kuchyňským koutem, ložnice, koupelna a WC. Byt je vybaven kuchyňskou linkou včetně elektrospotřebičů. Byt se nachází v lokalitě se skvělou dostupností do centra. V okolí naleznete veškerou občanskou vybavenost, ať už MHD, školy či obchody, k nastěhování ihned. V ceně nájmu nejsou zahrnuty zálohy na služby ve výši 500,-Kč/měsíc + elektřina bude přepsána na nájemce. Podrobnější informace a prohlídky u makléře.
2+KK s terasou a vlastním parkovacím stáním v Pardubicích - Studánka
Dlouhodobý pronájem menšího bytu 2+kk s velkou terasou v přízemí kompletně zrekonstruovaného bytového domu v klidné vilkové čtvrti Studánka. V tomto…
Pronájem bytu 2+kk, Pardubice Zelené Předměstí
Reality VAU Vám zprostředkují pronájem zrekonstruovaného bytu 2+kk s balkonem v klidné části Pardubic, ul. Svobody. Byt se nachází ve 2. NP zděného…