Makléř: Rakovcová Táňa
Telefon: 810 300 ...
E-mail: info@mm ...
Zobrazit celý kontaktTelefon: 810 300 300
E-mail: info@mmreality.cz
Nemovitost nabízí
M&M reality holding a.s.
Krakovská 1675/2, 110 00 Praha 1
Zobrazit kontakt na RK800 100 446
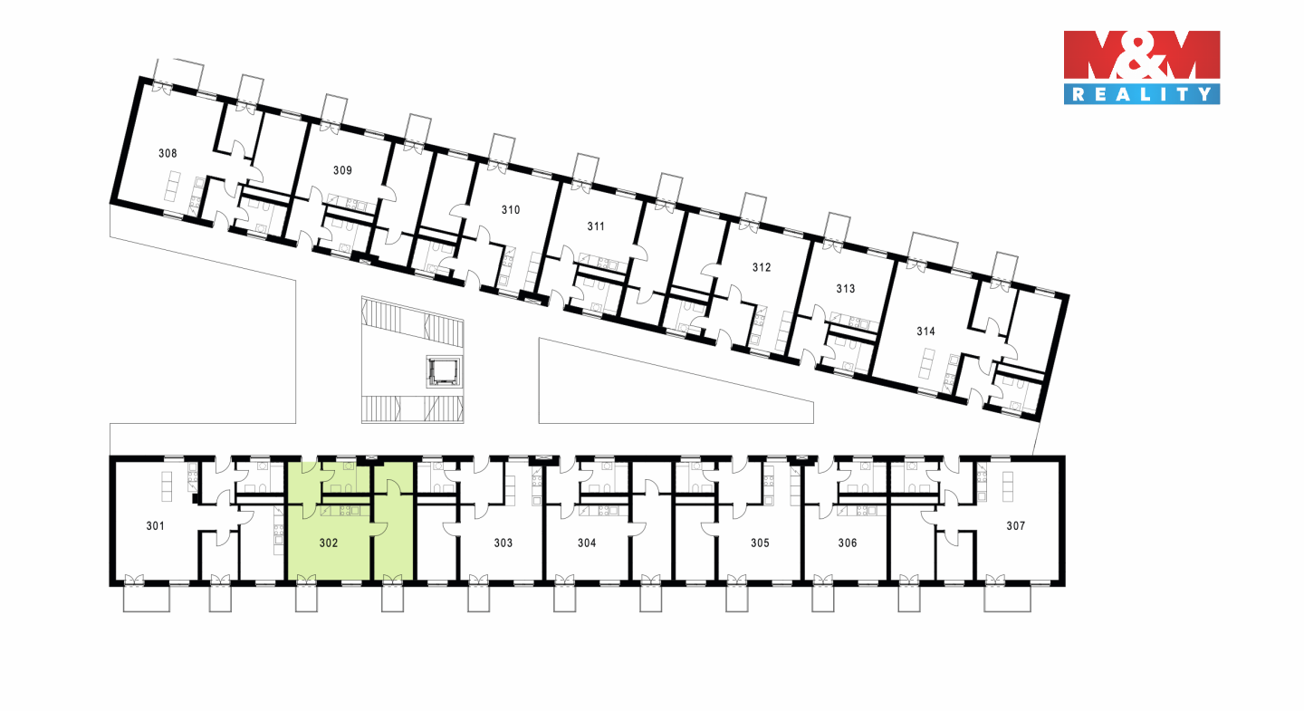
Nabízíme družstevní byt o ploše 56 m2 (včetně 2 x 2 m2 balkon a 2 m2 sklep) ve 2. patře moderního projektu Rezidence Říční z roku 2023. Součástí je vlastní parkovací stání v ceně. Velkou výhodou je výjimečná úroková sazba 3,8 % na další dva roky a možnost převodu do osobního vlastnictví za stejnou dobu. Cena za převod družstevního podílu je 1 350 000 Kč. Nesplacená anuita je 2 150 000 Kč, kterou splácíte ve formě měsíční splátky 10 500 Kč. Celkem tak získáte nové bydlení bez nutnosti okamžité hypotéky na celou částku nebo výhodnou investici. Dům se nachází v bezprostřední blízkosti cyklostezek a sportovního vyžití, přičemž centrum města je v pohodlné docházkové vzdálenosti. Lokalita disponuje výbornou občanskou vybaveností s mateřskou i základní školou v blízkém okolí. Více informací u makléře.
Nabízíme ke koupi moderní, slunný byt 2KK (51 m) v Rezidenci Říční, obec Svitavy
Nabízíme k prodeji družstevní byt o dispozici 2KK o celkové podlahové ploše 51 m. Byt disponuje vstupní chodbou, obývacím pokojem s kuchyňským koutem…
Byt 2+kk, Svitavy, Říční, balkon, parkovací stání, vhodné na investici - s nájemníkem
Byt 2+kk, Svitavy, Říční, balkon, parkovací stání, vhodné na investici - s nájemníkem Nabízíme k prodeji pěkný byt 2+kk, v komplexu Rezidence Říční…